- 440㎡
- 建筑面积
- 44~63个工位
- 可容纳工位
-
精装
- 装修程度
微信扫码咨询
办公室概况
- 可注册 是
- 朝向 朝北
- 免租期 面议
- 最短租期 24个月起租
- 装修情况
精装
- 价格优势 7.80元/m²⋅
天 ,约
10.44 万元/月
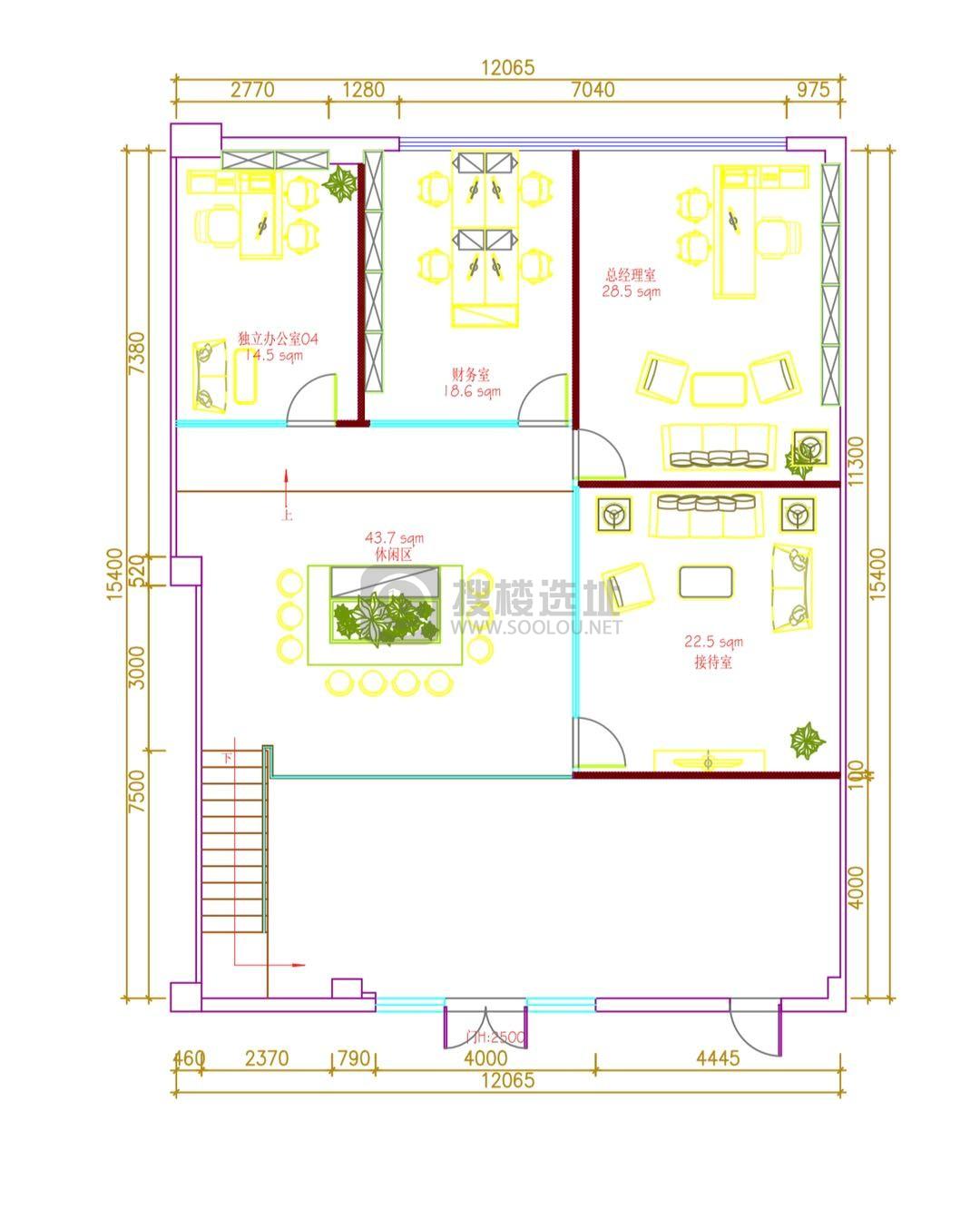
- 面积信息 440㎡,使用率约70% ,可容纳工位44~63个
- 付款方式 付三押二
- 物业费 24元/平米•月
本楼盘平均租金
7.28元/m²⋅天
最低租金4元/m²⋅
天
最高租金12元/m²⋅
天
上服德必徐家汇WE
- 4 元/m²⋅
天 起
- 竣工时间 2018年
- 车位数量 130个
- 物业公司 上海德必企业管理有限公司
- 在租户型 46个房源

在线咨询

电话咨询
400-087-7868
(工作日 早8:00-晚21:00)

微信咨询