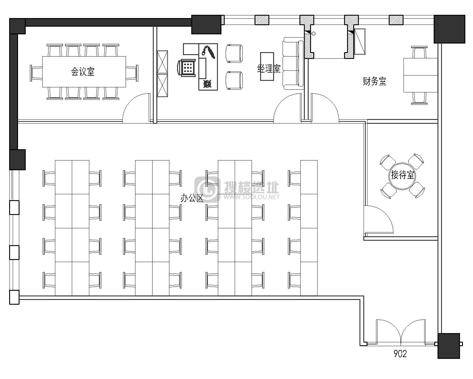
- 276㎡
- 建筑面积
- 28~40个工位
- 可容纳工位
-
精装
- 装修程度
微信扫码咨询
办公室概况
- 可注册 是
- 朝向 朝南
- 免租期 面议
- 最短租期 24个月
- 装修情况
精装
- 价格优势 6.60元/m²⋅
天 ,约
5.54 万元/月
- 面积信息 276㎡,使用率约70% ,可容纳工位28~40个
- 付款方式 押二付三
- 物业费 23元/平米•月
本楼盘平均租金
6.48元/m²⋅天
最低租金5.8元/m²⋅
天
最高租金7元/m²⋅
天
联峰汇大厦
- 5.8 元/m²⋅
天 起
- 竣工时间 2013年10月
- 车位数量 地下100个
- 物业公司 上海城开商用物业发展有限公司
- 在租户型 19个房源

在线咨询

电话咨询
400-087-7868
(工作日 早8:00-晚21:00)

微信咨询