- 83㎡
- 建筑面积
- 9~12个工位
- 可容纳工位
-
标准交付
- 装修程度
微信扫码咨询
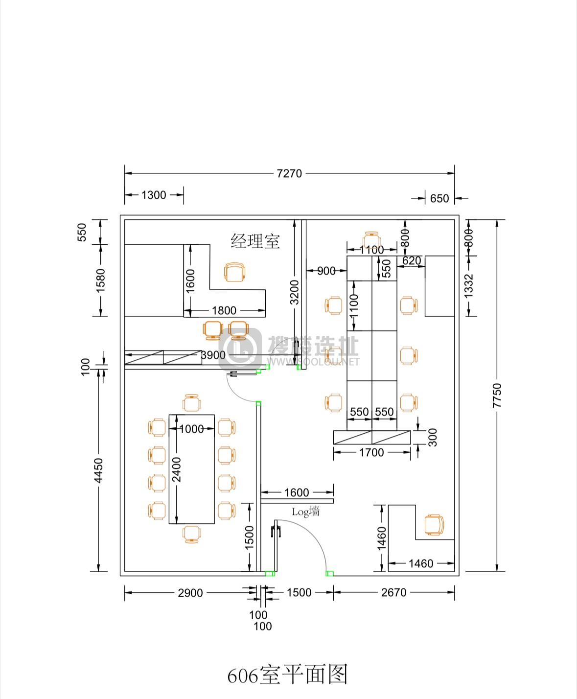
办公室概况
- 可注册 是
- 朝向 朝南
- 免租期 面议
- 最短租期 24个月
- 装修情况
标准交付
- 价格优势 6.50元/m²⋅
天 ,约
1.64 万元/月
- 面积信息 83㎡,使用率约68% ,可容纳工位9~12个
- 付款方式 押三付一
- 物业费 35元/平米·月
本楼盘平均租金
6.99元/m²⋅天
最低租金6元/m²⋅
天
最高租金7.8元/m²⋅
天
金融广场
- 6 元/m²⋅
天 起
- 竣工时间 1999年
- 车位数量 约120个
- 物业公司 上海迪帕特物业管理有限公司
- 在租户型 49个房源

在线咨询

电话咨询
400-087-7868
(工作日 早8:00-晚21:00)

微信咨询