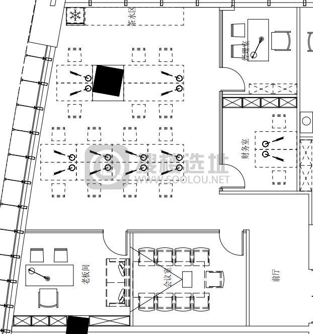
- 198㎡
- 建筑面积
- 20~29个工位
- 可容纳工位
-
精装
- 装修程度
微信扫码咨询
办公室概况
- 可注册 是
- 朝向 朝南
- 免租期 面议
- 最短租期 24
- 装修情况
精装
- 价格优势 3.70元/m²⋅
天 ,约
2.23 万元/月
- 面积信息 198㎡,使用率约60% ,可容纳工位20~29个
- 付款方式 押三付一
- 物业费 13.8元/平米•月
本楼盘平均租金
4.36元/m²⋅天
最低租金3.5元/m²⋅
天
最高租金6.5元/m²⋅
天
虹桥正荣中心
- 3.5 元/m²⋅
天 起
- 竣工时间 2016年12月
- 车位数量 1132个
- 物业公司 上海正荣物业管理有限公司
- 在租户型 37个房源

在线咨询

电话咨询
400-087-7868
(工作日 早8:00-晚21:00)

微信咨询