- 309㎡
- 建筑面积
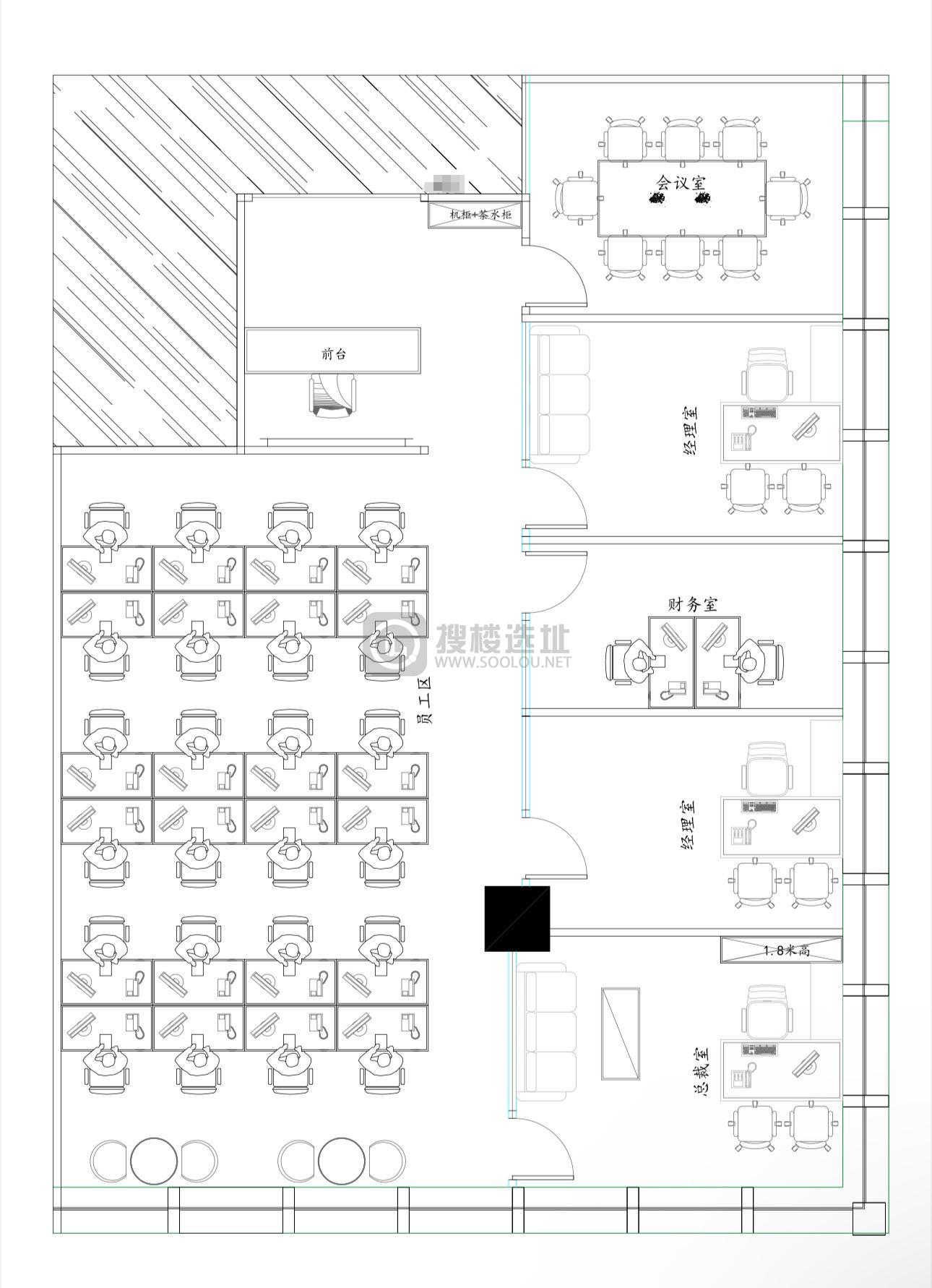
- 31~45个工位
- 可容纳工位
-
精装
- 装修程度
微信扫码咨询
办公室概况
- 可注册 是
- 朝向 朝南
- 免租期 面议
- 最短租期 24
- 装修情况
精装
- 价格优势 4.50元/m²⋅
天 ,约
4.23 万元/月
- 面积信息 309㎡,使用率约60% ,可容纳工位31~45个
- 付款方式 押三付一
- 物业费 30元/㎡/月
本楼盘平均租金
5.09元/m²⋅天
最低租金3.5元/m²⋅
天
最高租金6.2元/m²⋅
天
尚浦汇
- 3.5 元/m²⋅
天 起
- 竣工时间 2021年
- 车位数量 B2-B1:地下车位762个,充电车位: 112个
- 物业公司 美瑞物业
- 在租户型 37个房源

在线咨询

电话咨询
400-087-7868
(工作日 早8:00-晚21:00)

微信咨询