- 275㎡
- 建筑面积
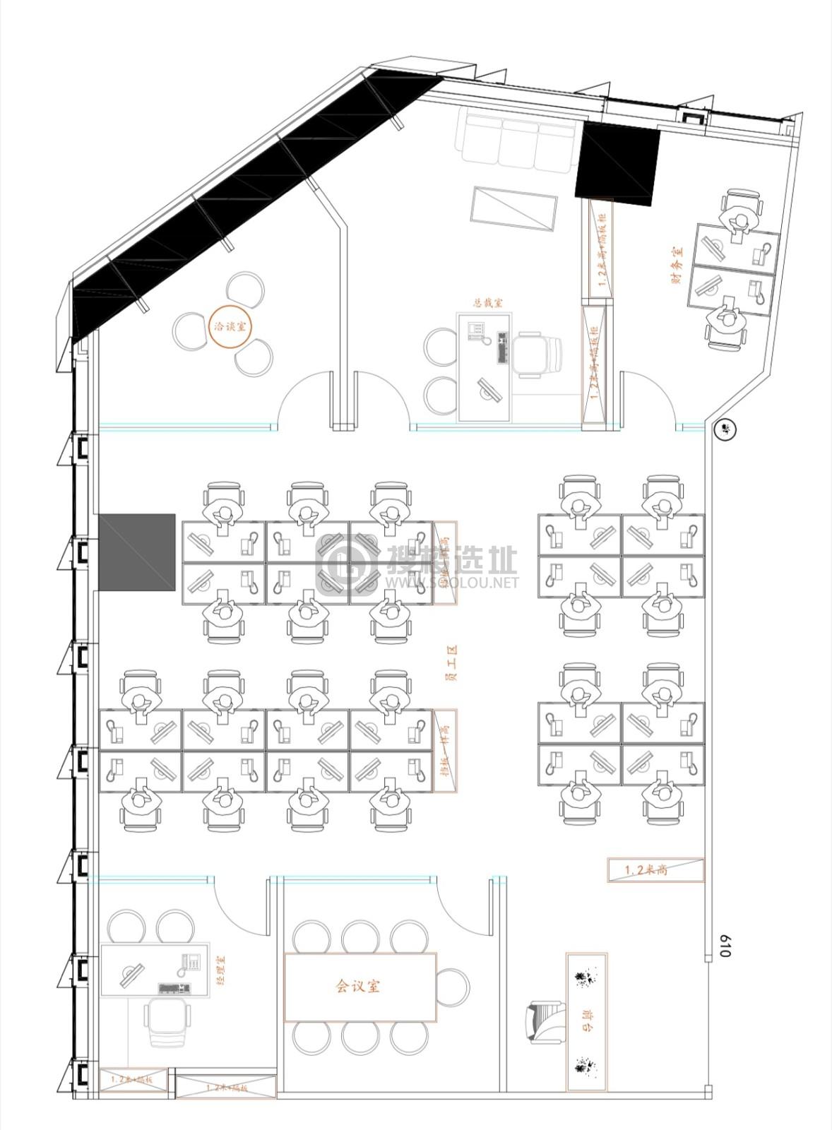
- 28~40个工位
- 可容纳工位
-
豪华装修
- 装修程度
微信扫码咨询
办公室概况
- 可注册 是
- 朝向 南
- 免租期 面议
- 最短租期 24个月起
- 装修情况
豪华装修
- 价格优势 5.50元/m²⋅
天 ,约
4.6 万元/月
- 面积信息 275㎡,使用率约70% ,可容纳工位28~40个
- 付款方式 付三押二
- 物业费 38.00元/平米·月
本楼盘平均租金
7.5元/m²⋅天
最低租金5.5元/m²⋅
天
最高租金8.7元/m²⋅
天
晶耀前滩
- 5.5 元/m²⋅
天 起
- 竣工时间 2017年
- 车位数量 暂无信息
- 物业公司 陆家嘴物业管理有限公司
- 在租户型 25个房源

在线咨询

电话咨询
400-087-7868
(工作日 早8:00-晚21:00)

微信咨询