- 160㎡
- 建筑面积
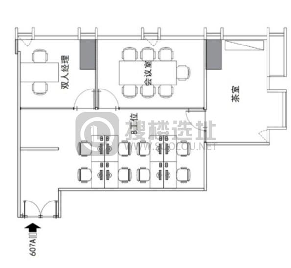
- 16~23个工位
- 可容纳工位
-
精装
- 装修程度
微信扫码咨询
办公室概况
- 可注册 是
- 朝向 南
- 免租期 面议
- 最短租期 12个月起
- 装修情况
精装
- 价格优势 4.30元/m²⋅
天 ,约
2.09 万元/月
- 面积信息 160㎡,使用率约70%% ,可容纳工位16~23个
- 付款方式 付三押二
- 物业费 办公:42元/平方米/月 ,商业独栋:21元/平方米/月
本楼盘平均租金
4.3元/m²⋅天
最低租金4.3元/m²⋅
天
最高租金4.3元/m²⋅
天
陆家嘴滨江中心(洋泾)
- 4.3 元/m²⋅
天 起
- 竣工时间 2020年11月
- 车位数量 560个
- 物业公司 陆家嘴物业
- 在租户型 10个房源

在线咨询

电话咨询
400-087-7868
(工作日 早8:00-晚21:00)

微信咨询